Located in central Cherry Hill, NJ near the new Garden State Park development including The Marketplace at Garden State Park with numerous stores including Wegmans, Citizens Bank, Home Depot, Dick's Sporting Goods, Best Buy, Bed Bath & Beyond and more.

New Home being set up. Skirting is next.
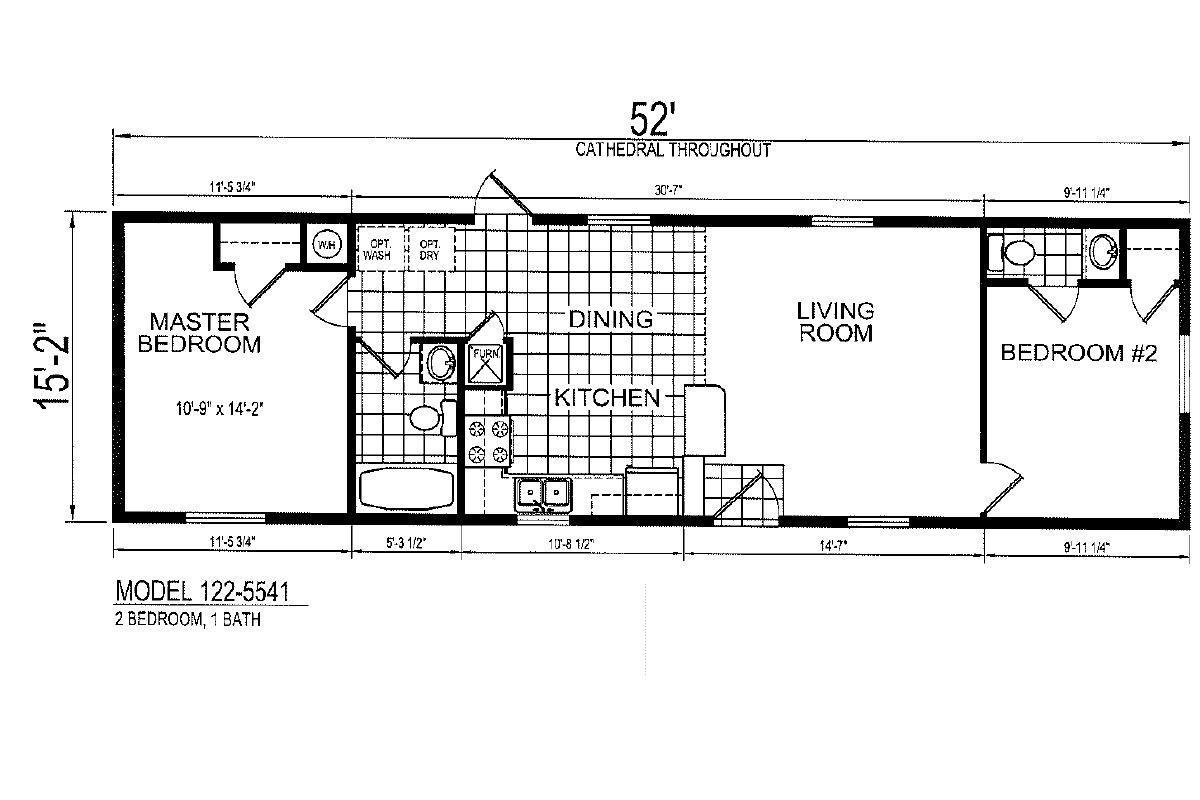
![]() (Floor Plan) |